
1、說明:
ZSFZ濕式報警閥是只允許水單方向流入噴水滅火系統,并在規定的壓力和流量下驅動配套部件報警的一種單向閥。它與水 流指示器、壓力開關、灑水噴頭等組成的濕式自動噴水滅火系統是一種應用極為廣泛的固定式滅火系統。該系統管網內常年充滿一定壓力的 清水,長期處于伺應工作狀態,當保護區域內某處發生火災時,區域內環境溫度升高,灑水噴頭的熱敏感元件(玻璃球)中的有機溶液發生熱 膨脹而產生很大的內壓力,直到玻璃球外殼發生破碎,從而開啟噴頭噴水,并且自動啟動整個系統,發出聲光報警信號,以達到火災報警及 控制火災、撲滅火災之目的。
2、產品結構和工作原理
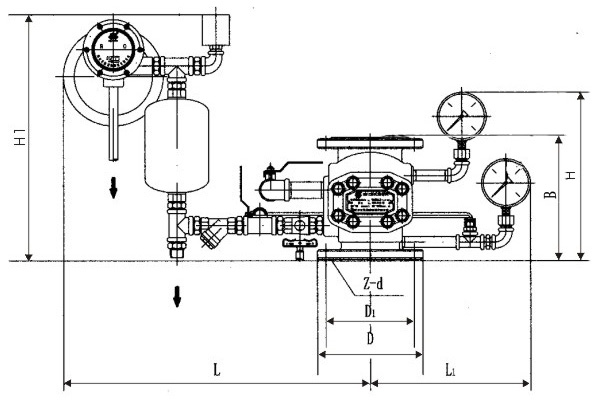
產品結構示意圖(圖一)

.1、產品的結構
從圖1可知,ZSFZ濕式報警閥裝置由濕式報警閥、延遲器、水力警鈴、壓力開關、排水閥、過濾器等組成。
2.1.1 、濕式報警閥
本濕式報警閥為蓋板型報警閥,主要由閥體、座圈和閥瓣三部分組成,整個閥體被閥瓣分成上、下兩腔,上腔(系統側)與 系統管網相通,下腔(供水側)與水源相通,在閥體中配有座圈,在座圈上,有多個通往延遲器進水管的溝槽小孔。
當系統處于伺應狀態 時,座圈上的溝槽小孔被閥瓣蓋住封閉,通往水力警鈴的報警水道被堵死;當上、下壓力差達到一定數值,閥瓣才開啟(差壓啟動),水就從 供水側流向系統側,警鈴報警,滅水系統噴水;當上、下壓力頻繁開啟,在閥瓣上設有小補水閥,當系統側管網有微小滲漏或水源壓力有波 動時,可以通過補水閥給管網補水,平衡上、下腔壓力,穩定了閥瓣,從而避免了誤報警。
2.1.2、延遲器
延遲器是一個有進水口和 出水口的圓筒形儲水容器,下端有進水口,與報警閥的報警口連接相通,上端有出水口,連接水力警鈴。由于系統的供水源壓力存在波動現 象,能使閥瓣出現瞬間開啟,水流經過座圈上溝槽及小孔首先進入延遲器,由于水源壓力波動的時間很短,閥瓣很快就能自動復位(關閉), 所以進入延遲器的水量很小,可以由延遲器來收集水,并經過底部的泄水口排泄,延遲器的這一緩沖時間作用,避免了水流壓力波動而引起 水力警鈴的誤報警。水從延遲器的進水口流入到出水口流出所需要時間為延遲時間,本裝置為5~90S,水流停止后,遺留在延遲器中的水由泄 水口排出,排完所需時間(排水時間)小于5min.
2.1.3、水力警鈴
水力警鈴是一種水力驅動的機械裝置。由殼體、葉輪、鈴錘和鈴蓋 等組成。當閥瓣被打開,水流通過座圈上的溝槽和小孔進入延遲器,充滿后,繼續流向水力警鈴的進水口,在一定的水流壓力下,推動葉輪 帶動鈴錘轉臂旋轉,使鈴錘連續擊打鋁鈴而發出報警鈴聲。
2.2、工作原理
濕式報警閥裝置長期處于伺應狀態,系統側充滿工作壓力 的水,自動噴水滅火系統控制區內發生火警時,系統管網上的閉式灑水噴頭中的熱敏感元件受熱爆破自動噴水,濕式報警閥系統側壓力下降 ,在壓差的作用下,閥瓣自動開啟,供水側的水流入系統側對管網進補水,整個管網處于自動噴水滅火狀態。同時,少部份水通過座圈上的 小孔流向延遲器和水力警鈴,在一定壓力和流量的情況下,水力警鈴發出報警聲響,壓力開關將壓力信號轉換成電信號,啟動消防水泵和輔 助滅火設備進行補水滅火,裝有水流指示器的管網也隨之動作,輸出電信號,使系統控制終端及時發現火災發生的區域,達到自動噴水滅火和 報警的目的。
3、產品型號及主要技術參數(見下表)
| 型號規格 | DN | D | D1 | Z-d | HI | H | LI | L | B |
| ZSFZ-100 | 100 | 220 | 180 | 8—Φ18 | 570 | 350 | 330 | 650 | 253 |
| ZSFZ-150 | 150 | 285 | 240 | 8—Φ22 | 600 | 350 | 340 | 680 | 280 |
| ZSFZ-200 | 200 | 340 | 295 | 12—Φ22 | 600 | 450 | 390 | 710 | 400 |
| ZSFZ-250 | 250 | 405 | 355 | 12—Φ26 | 620 | 450 | 390 | 790 | 440 |

4、安裝與調試
4.1、安裝
4.1.1、濕式報警閥安裝前應先進行滲漏試驗,試驗壓力為額定工作壓力的2倍,保 壓5min以上,閥瓣處應無滲漏;4.1.2、本裝置應豎直地安裝在試壓和沖洗合格的管路上,注意水流方向,安裝位置應考慮維修、保養時 有足夠的操作空間;4.1.3、系統管路應進行徹底沖洗,管內應涂有防銹層,保證管路內沒有臟物污垢;4.1.4、各排水口應用管路 單獨接入下水道,保持暢通無阻便于統一排水;4.1.5、壓力表應轉向看清讀數的位置;
4.1.6、水力警鈴和報警閥的位置,連接的 管路在出廠時已經安裝就緒,如需重新安排管路,其水平距離≤20m,高差≤5m.
4.2.1、管網系統安裝完畢后,向系統管路中充水,緩慢 升壓并將管路中的空氣排凈,升壓至系統工作壓力,檢查整個系統有無滲漏,合格 后作報警試驗和管路供水試驗。
4.2.2、報警試驗: 開啟末端試驗閥(裝在系統中最末端),水力警鈴、壓力開關和水流指示器,應作相應的報警動作。或開啟濕式報警閥裝置上的排水球閥(8), 當流量相當于一只標準噴頭(通徑為15mm,流量系數K=80±4)時,水力警鈴和壓力開關應作相應的報警動作。
4.2.3、打開報警試驗球閥 (10),進水側水流從銅管直接流入報警裝置,在閥瓣不開啟伺應狀態情況下,也可以試驗壓力開關和水力警鈴報警性能試驗。
4.2.4、管 路供水試驗:打開排水球閥(8),應有大量水流穩定地流出來,說明管路供水通暢正常,否則要檢查:管路系統進行排氣清除堵塞,保證暢通 無阻。
5、定期檢查和維修保養
5.1、閥瓣上的橡膠密封面,應及時清除附著的污垢和異物,橡膠密封件使用壽命一般在十八個月內 ,若有磨損、老化,應及時更換。
5. 2、閥座密封圈環形槽內的小孔和密封面,應清除污垢異物,密封面不應劃傷,小孔保持通暢,不 能修復應予更換。
5.3、及時清理報警閥裝置上過濾器內的臟物,保持管路通暢。
5.4、檢查和清理延遲器內的臟物,節流小孔不應 有異物堵塞。


